51360, IA Spirit Lake, 25913 162nd Street

Discover properties in 51360 within Spirit Lake, IA for Sale using Real Estate MLS # 251650.

$299,000

  • 3
  • 2
  • 1800
  • Active
Price Decreased

General Description

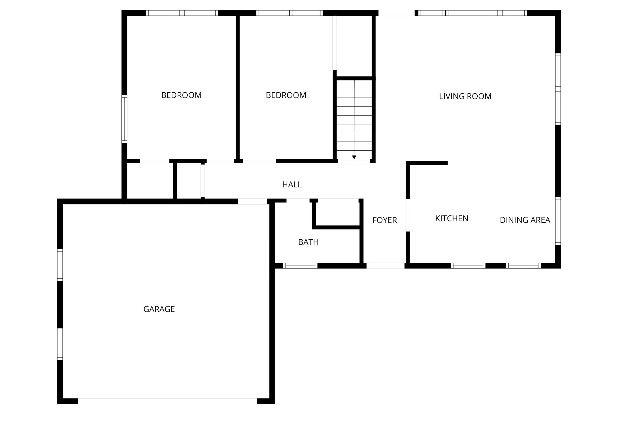
Step into your new home! This well maintained 3 bedroom, 2 bath ranch offers comfort, style, and convenient access to East Lake and Elinor Bedell State Park. Surrounded by mature evergreens and a neighboring vacant lot, the property provides a sense of privacy and tranquility. Inside, you’ll find hardwood floors and an open floor plan that creates a bright, welcoming space perfect for entertaining family and friends. Just off the living room, the back patio offers an additional place to relax and enjoy the outdoors. Completing the main floor are 2 bedrooms, a 3/4 bath, and access to the insulated garage, which is ready for electric heat. Downstairs, the updated basement offers a poured concrete foundation, even more living space, a full bathroom, and a conforming bedroom filled with natural light. A large utility room provides a laundry area and extra storage. This home has been meticulously cared for and includes major updates such as a newer roof, furnace, and water heater for added peace of mind. Schedule your private showing today and see all this home has to offer.

Legal: EAST OKOBOJI BEACH TOWNSHIP: 99 CENTER GROE TOWNSHIP LOT 4 AND E 20' LOT 5 BLK 2 UNIT 1
Status: Active

Property Information

251650

$299,000

Sale

Single Family Residence

Ranch

RESIDENTIAL

25913 162nd Street

Spirit Lake

IA

51360

3

2

1

1

1

1800

6970

Attached

2

East Okoboji Lake

Lake

0.00

1878

2024

Spirit Lake

1956

Features

No

Level, Paved Street(s)

Driveway-Concrete, Driveway-Gravel

Eat-in Kitchen, Garage Door Opener, Hardwood Floors, Main Floor Bedrooms, Smoke Alarms, Window Coverings

Cooktop, Dishwasher, Disposal, Microwave, Refrigerator, Wall Oven

Fuel Tank-Owned, Sump Pump, Water Heater-Elec

Utilities

Forced Air

Rural/Municipality

Public Sewer

Central

No

Breakers

Miscellaneous

Full

Egress Windows, Finished-Full, Sump Pump

Poured Concrete

Frame/Wood,Stick Built

Wood Siding

LISTED BY

Real Estate Unlimited, Sean Kondrath (712.331.4140)

PROPERTY LOCATION

MORTGAGE CALCULATOR


Similar listings

$330,000

Status: Active
408 Lake St, Spirit Lake, IA 51360

  250459

 2

 2

  5,310


Listed by : HOIEN REALTY, MARILYN STRICKLAND (712.320.7070)
Price Decreased

$265,000

Status: Active
1108 Fargo Avenue, Spirit Lake, IA 51360

  251530

 4

 3

  1,144


Listed by : RE/MAX LAKES REALTY, HOLLI HANSEN (507.220.4487)
Price Decreased

$349,000

Status: Active
4 23rd St, Spirit Lake, IA 51360

  251625

 4

 2

  2,120


Open House: 21 Mar, 2026 (11:00 AM to 12:00 PM)
Listed by : ANCHOR REALTY GROUP, ABBY PHILLIPS (712.540.1356)
Open House

$319,900

Status: Active
610 20th Street, Spirit Lake, IA 51360

  260104

 4

 2

  2,928


Listed by : LAKELAND REALTY OF IOWA, KEITH BROCKMEYER (712.330.5155)
New Listing
This Residential residence on 25913 162nd Street (MLS # 251650) is categorized as Residential Homes for Sale in Spirit Lake, IA. Available on Greg Sheeler Real Estate, this Residential property is priced at $299,000 and boasts 3 bedrooms, 1800 sqft, and 2 bathrooms. Built in 1956, this property on 25913 162nd Street offers a unique opportunity to explore the real estate market in Spirit Lake. For detailed market statistics and community insights, whether you're interested in Spirit Lake listings or specifically 25913 162nd Street, contact RE/MAX Lakes Realty, the premier real estate hub in Iowa Great Lakes. Our team is dedicated to assisting you in finding the perfect residential options in and around Spirit Lake, IA.

Ask About this Property #251650

Share


NEWSLETTER